Floor plan details of multi-flooring office building dwg file
Description
Floor plan details of multi-flooring office building dwg file.
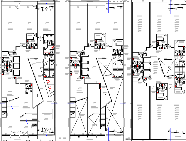
Floor plan details of multi-flooring office building that includes a detailed view of reception view, inquiry desk, indoor staircase, conference room, meting room, sanitary view for ladies and gents, kitchen, dining area and much more of floor plan details of corporate building.
Uploaded by:

