LOGIN
HOME
CATEGORIES
UPLOAD FILE
PRICING
HOUSE PLAN
ABOUT US
CONTACT US
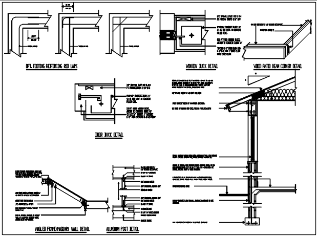
Door framing detail, column detail, wall section detail with naming detail , dimension detail, etc.
Home
Categories
Details
Construction Details
Door framing detail, column detail, wall section detail with naming detail , dimension detail, etc.
Uploaded by:
Dhara
View Profile
View Profile
Description
Door framing detail, column detail, wall section detail with naming detail , dimension detail, etc.
File Type:
DWG
File Size:
44 KB
Category::
Details
Sub Category::
Construction Details
type:
Gold
Uploaded by:
Dhara
View Profile
Download
Add to libary
find Latest
Related
Files