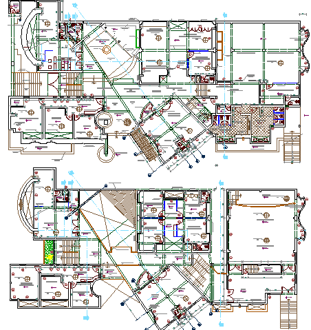
Detailed floor plan layout of municipal government building dwg file
Description
Detailed floor plan layout of municipal government building dwg file.
Detailed floor plan layout of municipal government building that includes a detailed view of ground floor, first floor, car parking view, main entry door, reception area, waiting area, employee offices, head offices, sitting area, general hall, admin office, control room, passage, male toilet, female toilets, kitchen, dining area, cafeteria, manager cabin, conference room, meeting room and much more of building floor plan detail.
Uploaded by:

