LOGIN
HOME
CATEGORIES
UPLOAD FILE
PRICING
HOUSE PLAN
ABOUT US
CONTACT US
Music school masonry construction details dwg file
Home
Categories
Details
Construction Details
Music school masonry construction details dwg file
Uploaded by:
Chirag
View Profile
View Profile
Description
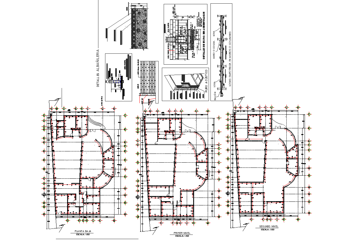
Music school masonry construction details dwg file in construction detail with floor plan and view of column and wall detail with necessary dimension.
File Type:
DWG
File Size:
644 KB
Category::
Details
Sub Category::
Construction Details
type:
Free
Uploaded by:
Chirag
View Profile
Download
Add to libary
find Latest
Related
Files