LOGIN
HOME
CATEGORIES
UPLOAD FILE
PRICING
HOUSE PLAN
ABOUT US
CONTACT US
Kitchen elevation detail dwg file
Home
Categories
Interior Design
Kitchen Interiors
Kitchen elevation detail dwg file
Uploaded by:
Dhara
View Profile
View Profile
Description
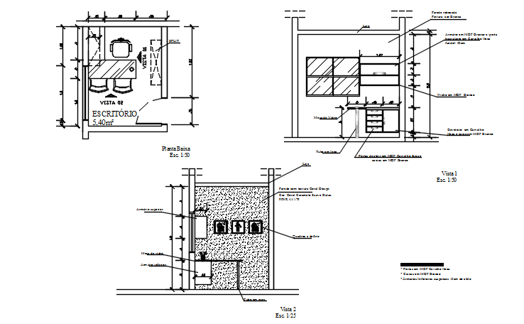
Kitchen elevation detail dwg file, Kitchen elevation detail with dimension detail, naming detail, chimney detail, cub bord detail, brick detail, etc.
File Type:
DWG
File Size:
1.2 MB
Category::
Interior Design
Sub Category::
Kitchen Interiors
type:
Gold
Uploaded by:
Dhara
View Profile
Download
Add to libary
find Latest
Related
Files