One family bungalow architecture layout plan dwg file
Description
One family bungalow architecture layout plan dwg file.
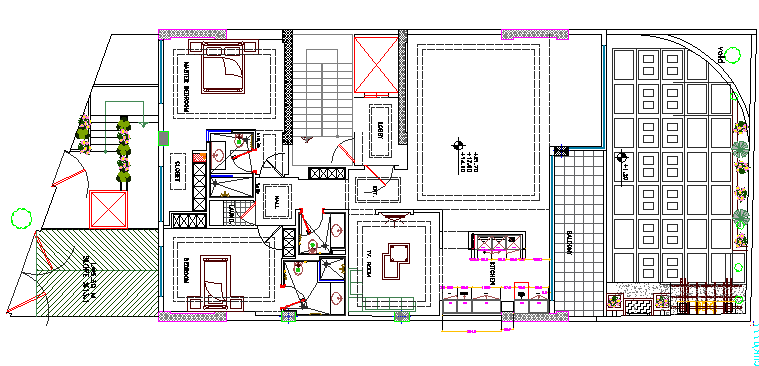
One family bungalow architecture layout plan that includes a detailed view of outdoor mini garden, that includes a detailed view of main entry door, family hall, kitchen, dining area, toilet, bedroom, bar, rack, indoor furniture, laundry area , bathroom, passage and much more of bungalow layout plan details.
Uploaded by:

