LOGIN
HOME
CATEGORIES
UPLOAD FILE
PRICING
HOUSE PLAN
ABOUT US
CONTACT US
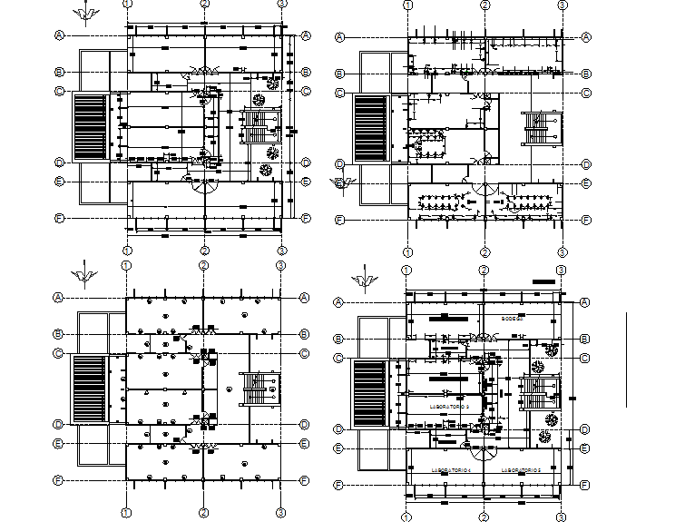
Center line plan detail dwg file
Home
Categories
Architecture
Corporate Building
Center line plan detail dwg file
Uploaded by:
Dhara
View Profile
View Profile
Description
Center line plan detail dwg file, Center line plan detail with dimension detail, naming detail, north direction detail, stair detail, toilet detail, etc.
File Type:
DWG
File Size:
732 KB
Category::
Architecture
Sub Category::
Corporate Building
type:
Gold
Uploaded by:
Dhara
View Profile
Download
Add to libary
find Latest
Related
Files