Center line plan detail dwg file

Center line plan detail dwg file
Profile

Uploaded by:

Dhara

Description
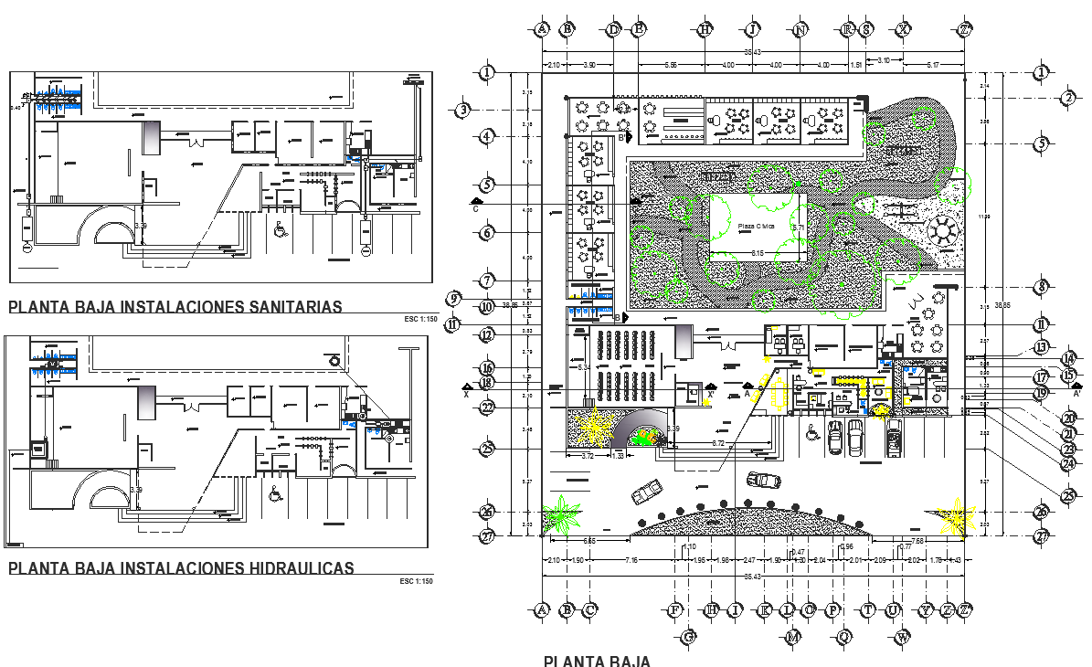
Center line plan detail dwg file, Center line plan detail with dimension detail, naming detail, furniture detail with sofa, chair, table, landscaping detail, car parking detail, etc.
Profile

Uploaded by:

Dhara

find Latest

Related Files

WhatsApp Chat