LOGIN
HOME
CATEGORIES
UPLOAD FILE
PRICING
HOUSE PLAN
ABOUT US
CONTACT US
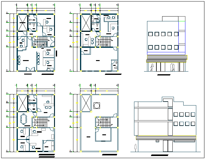
Office building plan detail view dwg file
Home
Categories
Architecture
Corporate Building
Office building plan detail view dwg file
Uploaded by:
Parth
View Profile
View Profile
Description
Office building plan detail view dwg file, Office building plan detail view and design plan layout detail with specification detail, dimensions detail
File Type:
DWG
File Size:
117 KB
Category::
Architecture
Sub Category::
Corporate Building
type:
Gold
Uploaded by:
Parth
View Profile
Download
Add to libary
find Latest
Related
Files