LOGIN
HOME
CATEGORIES
UPLOAD FILE
PRICING
HOUSE PLAN
ABOUT US
CONTACT US
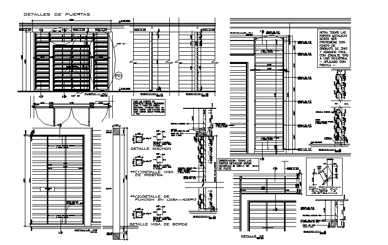
Door framing elevation plan detail dwg file
Home
Categories
Furniture
Door & Window Blocks
Door framing elevation plan detail dwg file
Uploaded by:
Dhara
View Profile
View Profile
Description
Door framing elevation plan detail dwg file, Door framing elevation plan detail with dimension detail, naming detail, beam and column detail etc.
File Type:
DWG
File Size:
139 KB
Category::
Furniture
Sub Category::
Door & Window Blocks
type:
Gold
Uploaded by:
Dhara
View Profile
Download
Add to libary
find Latest
Related
Files