Working Commercial plan detail dwg file

Working Commercial plan detail dwg file
Profile

Uploaded by:

Dhara

Description
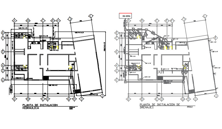
Working Commercial plan detail dwg file, Working Commercial plan detail with naming detail, dimension detail, stair detail, landscaping detail with plant and tree detail, etc.
Profile

Uploaded by:

Dhara

find Latest

Related Files

WhatsApp Chat