LOGIN
HOME
CATEGORIES
UPLOAD FILE
PRICING
HOUSE PLAN
ABOUT US
CONTACT US
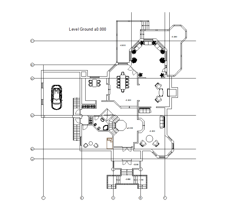
Ground floor layout plan of building dwg file
Home
Categories
Architecture
High Rise Building
Ground floor layout plan of building dwg file
Uploaded by:
Dipika
View Profile
View Profile
Description
Ground floor layout plan dwg file,here there is 2d plan details of a apartment, furniture detailing is shown, human figure detailing
File Type:
DWG
File Size:
1.1 MB
Category::
Architecture
Sub Category::
High Rise Building
type:
Free
Uploaded by:
Dipika
View Profile
Download
Add to libary
find Latest
Related
Files