LOGIN
HOME
CATEGORIES
UPLOAD FILE
PRICING
HOUSE PLAN
ABOUT US
CONTACT US
Saloon layout plan dwg file
Home
Categories
Architecture
Club House Design
Saloon layout plan dwg file
Uploaded by:
Dipika
View Profile
View Profile
Description
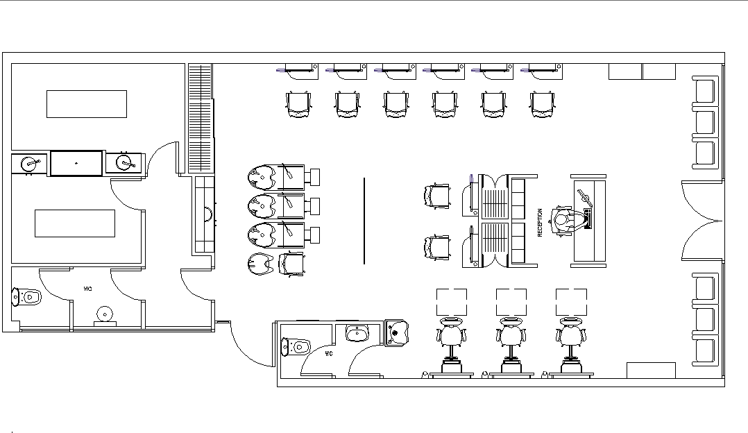
Saloon layout plan dwg file, reception area is shown, with all saloon furniture, bathroom plan, spacious concept
File Type:
DWG
File Size:
246 KB
Category::
Architecture
Sub Category::
Club House Design
type:
Free
Uploaded by:
Dipika
View Profile
Download
Add to libary
find Latest
Related
Files