LOGIN
HOME
CATEGORIES
UPLOAD FILE
PRICING
HOUSE PLAN
ABOUT US
CONTACT US
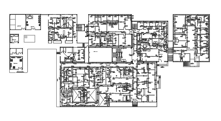
General Hospital Floor Plan In AutoCAD File
Home
Categories
Architecture
Hospital Projects
General Hospital Floor Plan In AutoCAD File
Uploaded by:
Chirag
View Profile
View Profile
Description
General Hospital Floor Plan In AutoCAD File which includes the details of different departments, staircase details, door, window.
File Type:
DWG
File Size:
3.8 MB
Category::
Architecture
Sub Category::
Hospital Projects
type:
Gold
Uploaded by:
Chirag
View Profile
Download
Add to libary
find Latest
Related
Files