LOGIN
HOME
CATEGORIES
UPLOAD FILE
PRICING
HOUSE PLAN
ABOUT US
CONTACT US
Small Bungalow Design In DWG File
Home
Categories
Architecture
House Plan
Small Bungalow Design In DWG File
Uploaded by:
Poonam
View Profile
View Profile
Description
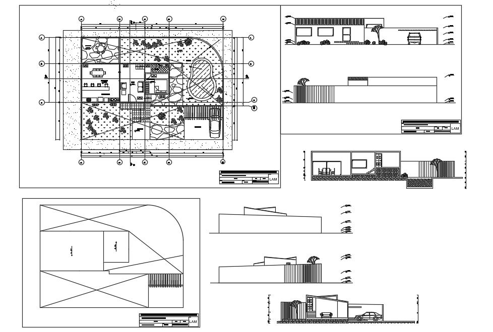
Small Bungalow Design In DWG File which includes front and back elevation, side elevations, wall construction, column and beam details.
File Type:
DWG
File Size:
633 KB
Category::
Architecture
Sub Category::
House Plan
type:
Gold
Uploaded by:
Poonam
View Profile
Download
Add to libary
find Latest
Related
Files