LOGIN
HOME
CATEGORIES
UPLOAD FILE
PRICING
HOUSE PLAN
ABOUT US
CONTACT US
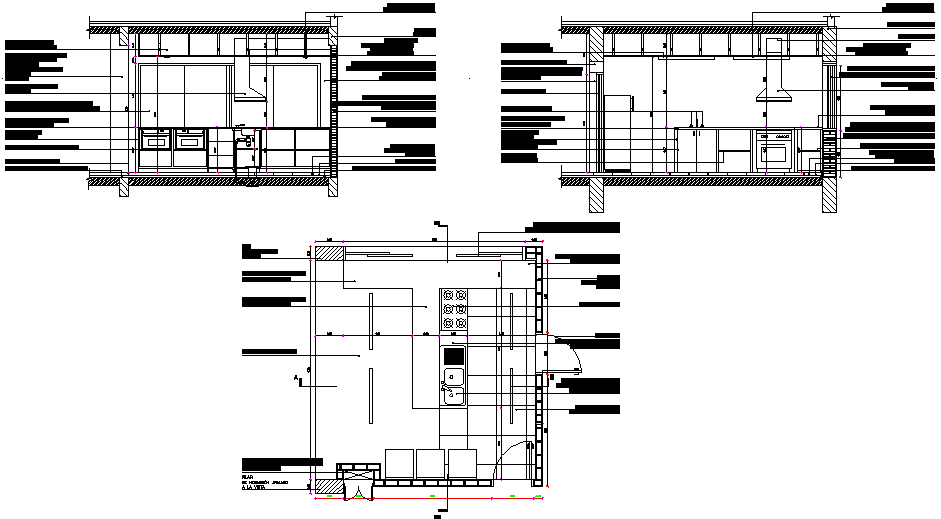
Detailing of kitchen dwg file
Home
Categories
Interior Design
Kitchen Interiors
Detailing of kitchen dwg file
Uploaded by:
Dhara
View Profile
View Profile
Description
Detailing of kitchen dwg file, with elevation and plan detail, dimension detail, naming detail, stove, sink, cub board detail, section line detail, etc.
File Type:
DWG
File Size:
132 KB
Category::
Interior Design
Sub Category::
Kitchen Interiors
type:
Gold
Uploaded by:
Dhara
View Profile
Download
Add to libary
find Latest
Related
Files