LOGIN
HOME
CATEGORIES
UPLOAD FILE
PRICING
HOUSE PLAN
ABOUT US
CONTACT US
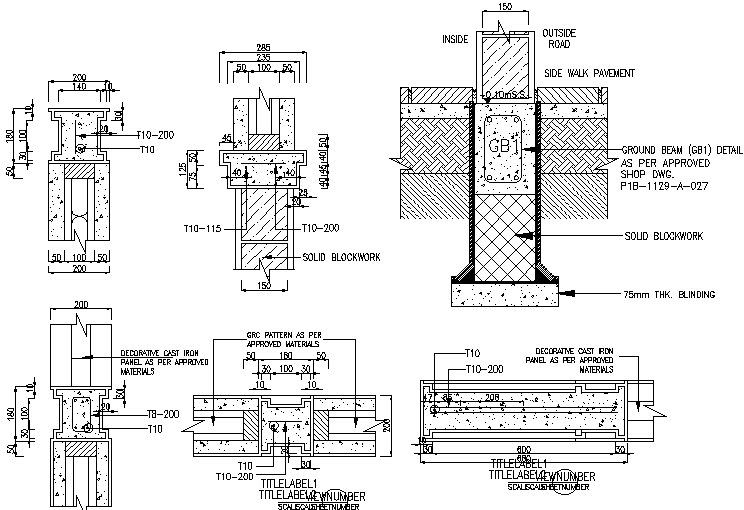
Wall section detail dwg file
Home
Categories
Details
Construction Details
Wall section detail dwg file
Uploaded by:
Dhara
View Profile
View Profile
Description
Wall section detail dwg file, with dimension detail, naming detail, concert mortar detail, soil block work, 75mm think blinding, etc.
File Type:
DWG
File Size:
3.1 MB
Category::
Details
Sub Category::
Construction Details
type:
Free
Uploaded by:
Dhara
View Profile
Download
Add to libary
find Latest
Related
Files