LOGIN
HOME
CATEGORIES
UPLOAD FILE
PRICING
HOUSE PLAN
ABOUT US
CONTACT US
Business hub building plan detail dwg file
Home
Categories
Architecture
Corporate Building
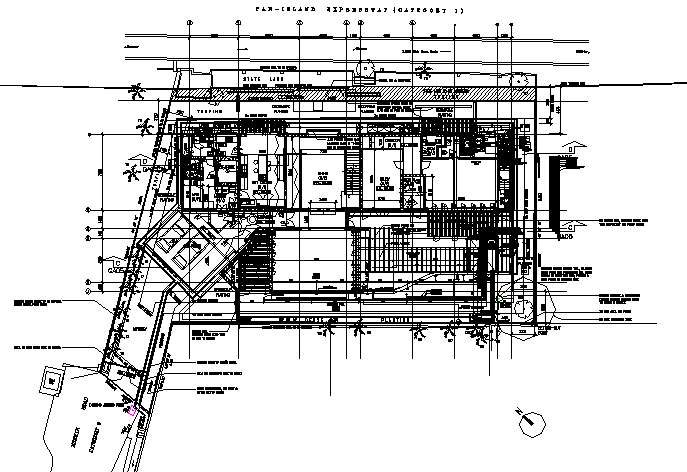
Business hub building plan detail dwg file
Uploaded by:
Dhara
View Profile
View Profile
Description
Business hub building plan detail dwg file, north direction detail, centre line plan detail, landscaping detail with tree and plant detail, etc.
File Type:
DWG
File Size:
573 KB
Category::
Architecture
Sub Category::
Corporate Building
type:
Gold
Uploaded by:
Dhara
View Profile
Download
Add to libary
find Latest
Related
Files