LOGIN
HOME
CATEGORIES
UPLOAD FILE
PRICING
HOUSE PLAN
ABOUT US
CONTACT US
Commercial store dwg file
Home
Categories
Architecture
Corporate Building
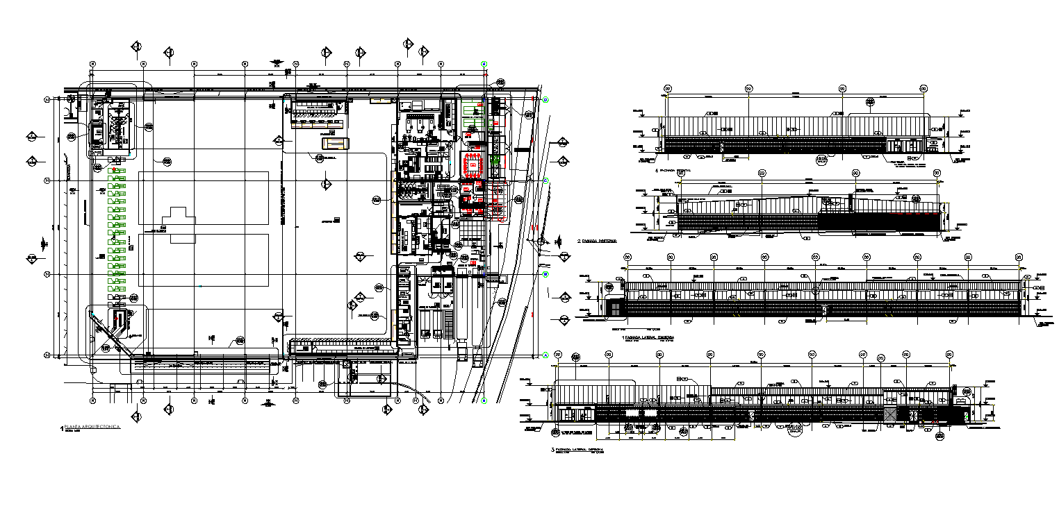
Commercial store dwg file
Uploaded by:
Poonam
View Profile
View Profile
Description
Design of Commercial store dwg file. Find construction plan, structure plan, section plan, foundation plan and beam detail in AutoCAD format.
File Type:
DWG
File Size:
1.3 MB
Category::
Architecture
Sub Category::
Corporate Building
type:
Free
Uploaded by:
Poonam
View Profile
Download
Add to libary
find Latest
Related
Files