LOGIN
HOME
CATEGORIES
UPLOAD FILE
PRICING
HOUSE PLAN
ABOUT US
CONTACT US
Plan and section Group departments detail dwg file
Home
Categories
Architecture
Corporate Building
Plan and section Group departments detail dwg file
Uploaded by:
Dhara
View Profile
View Profile
Description
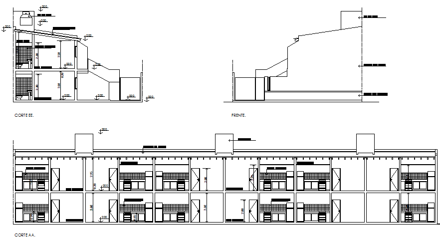
Plan and section Group departments detail dwg file, including section A-A’ detail, section E-E’ detail, dimension detail, door and window detail, etc.
File Type:
DWG
File Size:
237 KB
Category::
Architecture
Sub Category::
Corporate Building
type:
Gold
Uploaded by:
Dhara
View Profile
Download
Add to libary
find Latest
Related
Files