Section and elevation detail dwg file

Section and elevation detail dwg file
Profile

Uploaded by:

Dhara

Description
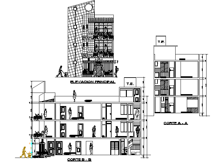
Section and elevation detail dwg file, including front elevation detail, section A-A’ detail, section B-B’ detail, dimension detail, naming detail, door and window detail, etc.
Profile

Uploaded by:

Dhara

find Latest

Related Files

WhatsApp Chat