LOGIN
HOME
CATEGORIES
UPLOAD FILE
PRICING
HOUSE PLAN
ABOUT US
CONTACT US
Steel structural roof detail dwg file
Home
Categories
Details
Construction Details
Steel structural roof detail dwg file
Uploaded by:
Dhara
View Profile
View Profile
Description
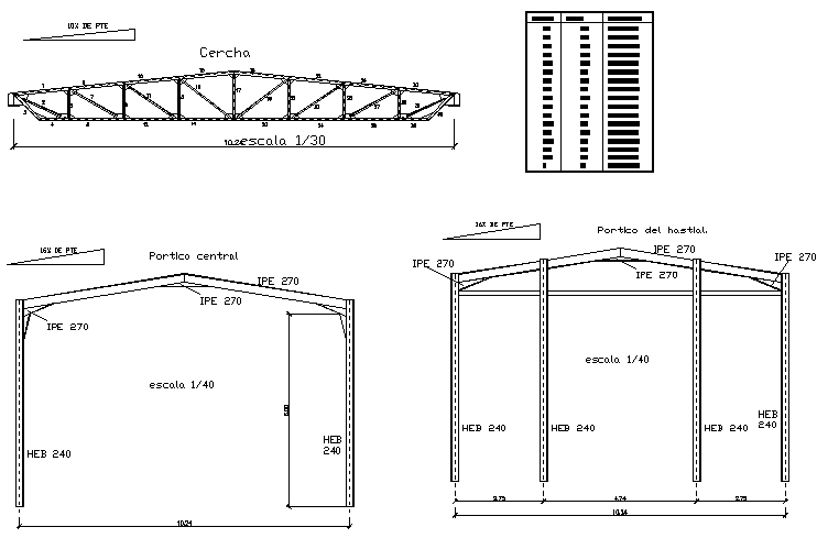
Steel structural roof detail dwg file, including table specification detail, dimension detail, naming detail, etc.
File Type:
DWG
File Size:
149 KB
Category::
Details
Sub Category::
Construction Details
type:
Gold
Uploaded by:
Dhara
View Profile
Download
Add to libary
find Latest
Related
Files