LOGIN
HOME
CATEGORIES
UPLOAD FILE
PRICING
HOUSE PLAN
ABOUT US
CONTACT US
Foundation plan detail dwg file
Home
Categories
Details
Construction Details
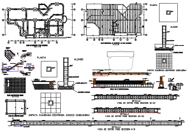
Foundation plan detail dwg file
Uploaded by:
Dhara
View Profile
View Profile
Description
Foundation plan detail dwg file, with beam section detail, foundation detail, center line plan detail, dimension detail, naming detail, etc.
File Type:
DWG
File Size:
11.2 MB
Category::
Details
Sub Category::
Construction Details
type:
Gold
Uploaded by:
Dhara
View Profile
Download
Add to libary
find Latest
Related
Files