LOGIN
HOME
CATEGORIES
UPLOAD FILE
PRICING
HOUSE PLAN
ABOUT US
CONTACT US
Site plan detail dwg file
Home
Categories
Details
Construction Details
Site plan detail dwg file
Uploaded by:
Dhara
View Profile
View Profile
Description
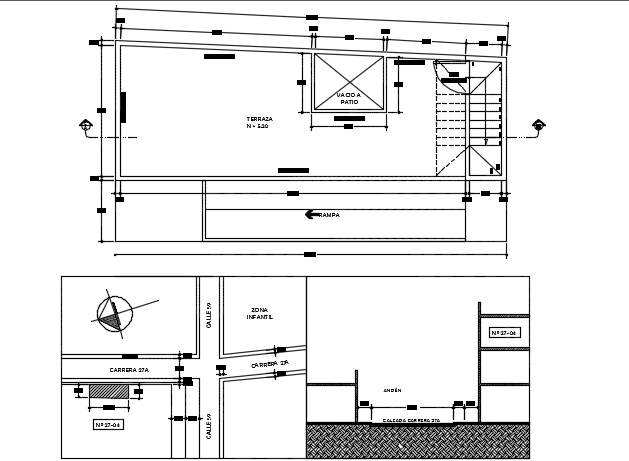
Site plan detail dwg file, including north direction detail, section line detail, dimension detail, naming detail, stair detail, etc.
File Type:
DWG
File Size:
176 KB
Category::
Details
Sub Category::
Construction Details
type:
Gold
Uploaded by:
Dhara
View Profile
Download
Add to libary
find Latest
Related
Files