Section house plan detail dwg file

Section house plan detail dwg file
Profile

Uploaded by:

Dhara

Description
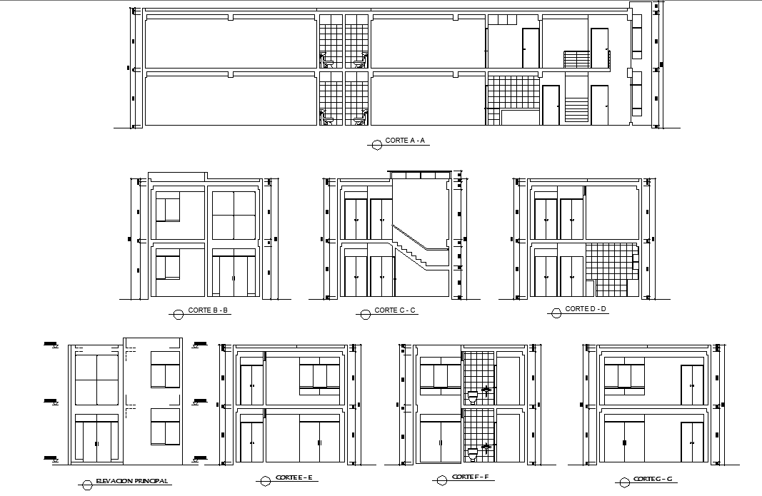
Section house plan detail dwg file, including dimension detail, naming detail, section A-A’ detail, section B-B’ detail, section C-C’ detail, section D-D’ detail, section E-E’ detail, etc.
Profile

Uploaded by:

Dhara

find Latest

Related Files

WhatsApp Chat