LOGIN
HOME
CATEGORIES
UPLOAD FILE
PRICING
HOUSE PLAN
ABOUT US
CONTACT US
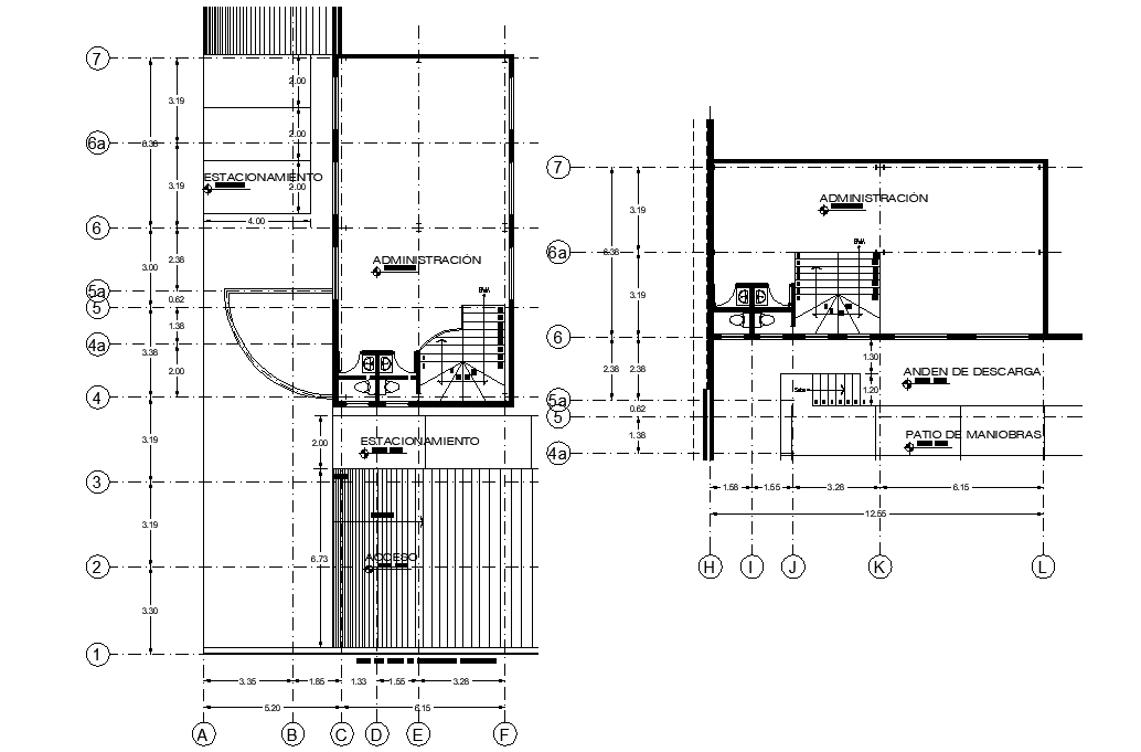
House plan detail dwg file
Home
Categories
Architecture
House Plan
House plan detail dwg file
Uploaded by:
Dhara
View Profile
View Profile
Description
House plan detail dwg file, including stair detail, toilet detail, centre line plan detail, etc.
File Type:
DWG
File Size:
434 KB
Category::
Architecture
Sub Category::
House Plan
type:
Gold
Uploaded by:
Dhara
View Profile
Download
Add to libary
find Latest
Related
Files