LOGIN
HOME
CATEGORIES
UPLOAD FILE
PRICING
HOUSE PLAN
ABOUT US
CONTACT US
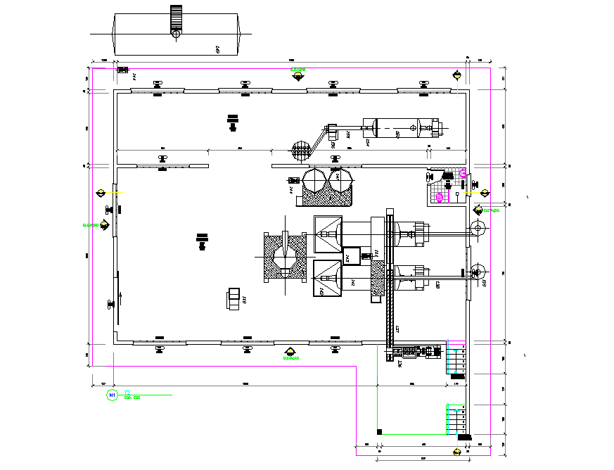
Industrial factory of flours process plan detail dwg file
Home
Categories
Architecture
Industrial Plant
Industrial factory of flours process plan detail dwg file
Uploaded by:
Dhara
View Profile
View Profile
Description
Industrial factory of flours process plan detail dwg file, with section line detail, dimension detail, naming detail, etc.
File Type:
DWG
File Size:
107 KB
Category::
Architecture
Sub Category::
Industrial Plant
type:
Gold
Uploaded by:
Dhara
View Profile
Download
Add to libary
find Latest
Related
Files