LOGIN
HOME
CATEGORIES
UPLOAD FILE
PRICING
HOUSE PLAN
ABOUT US
CONTACT US
Flat Layout Plan In AutoCAD File
Home
Categories
Architecture
Apartment Drawing
Flat Layout Plan In AutoCAD File
Uploaded by:
Chirag
View Profile
View Profile
Description
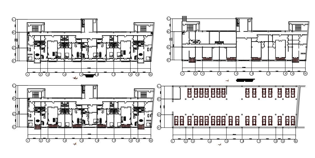
Flat Layout Plan In AutoCAD File which shows the plan of the hall, kitchen, dining room, 2 bedrooms. It also includes details of staircases and floor plan of basement parking.
File Type:
DWG
File Size:
579 KB
Category::
Architecture
Sub Category::
Apartment Drawing
type:
Gold
Uploaded by:
Chirag
View Profile
Download
Add to libary
find Latest
Related
Files