LOGIN
HOME
CATEGORIES
UPLOAD FILE
PRICING
HOUSE PLAN
ABOUT US
CONTACT US
Panel Plant In AutoCAD File
Home
Categories
Structure
Beam And Lintel
Panel Plant In AutoCAD File
Uploaded by:
Dhara
View Profile
View Profile
Description
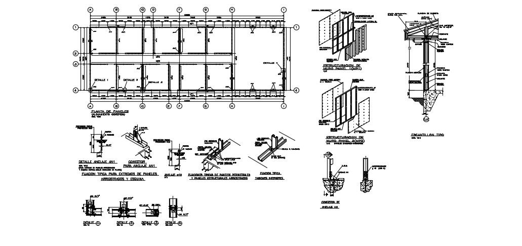
Panel Plant In AutoCAD File which shows a different section of the panel, typical panel settings, typical fixation, panel structure.
File Type:
DWG
File Size:
1.3 MB
Category::
Structure
Sub Category::
Beam And Lintel
type:
Gold
Uploaded by:
Dhara
View Profile
Download
Add to libary
find Latest
Related
Files