LOGIN
HOME
CATEGORIES
UPLOAD FILE
PRICING
HOUSE PLAN
ABOUT US
CONTACT US
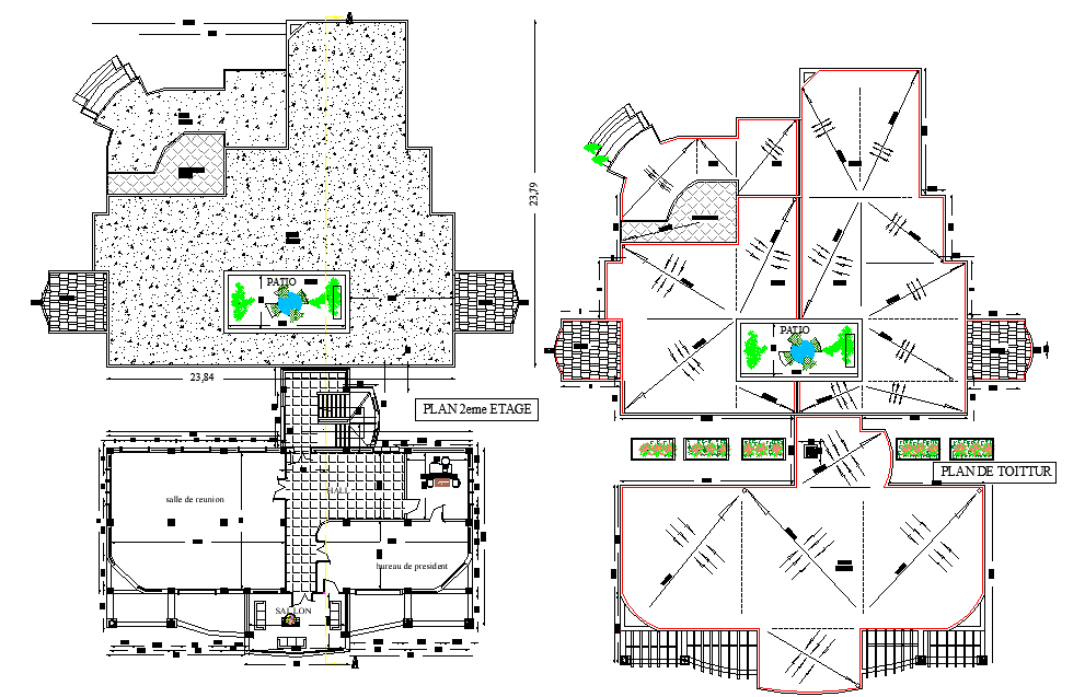
Working Administration plans detail dwg file
Home
Categories
Architecture
Corporate Building
Working Administration plans detail dwg file
Uploaded by:
Dhara
View Profile
View Profile
Description
Working Administration plans detail dwg file, with dimension detail, naming detail, furniture detail in sofa, table, chair, door and window detail, etc.
File Type:
DWG
File Size:
4.2 MB
Category::
Architecture
Sub Category::
Corporate Building
type:
Gold
Uploaded by:
Dhara
View Profile
Download
Add to libary
find Latest
Related
Files