LOGIN
HOME
CATEGORIES
UPLOAD FILE
PRICING
HOUSE PLAN
ABOUT US
CONTACT US
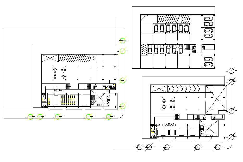
Building office plan detail dwg file
Home
Categories
Architecture
Corporate Building
Building office plan detail dwg file
Uploaded by:
Dhara
View Profile
View Profile
Description
Building office plan detail dwg file, with centre lien plan detail dimension detail, aning detail, ramp detail, car parking detail, dimension detail, naming detail, etc.
File Type:
DWG
File Size:
616 KB
Category::
Architecture
Sub Category::
Corporate Building
type:
Gold
Uploaded by:
Dhara
View Profile
Download
Add to libary
find Latest
Related
Files