LOGIN
HOME
CATEGORIES
UPLOAD FILE
PRICING
HOUSE PLAN
ABOUT US
CONTACT US
Bank layout plan detail
Home
Categories
Architecture
Bank Drawing
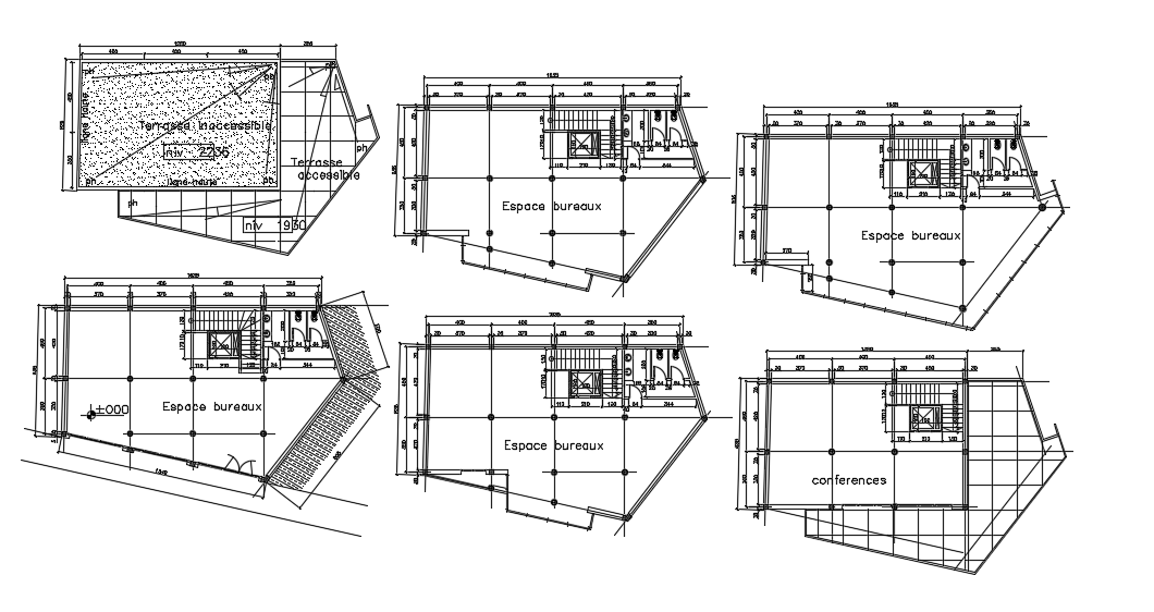
Bank layout plan detail
Uploaded by:
Poonam
View Profile
View Profile
Description
Here the detailed drawing of bank dwg file. With dimensions detail and office furniture, door view, conference room etc.
File Type:
DWG
File Size:
132 KB
Category::
Architecture
Sub Category::
Bank Drawing
type:
Gold
Uploaded by:
Poonam
View Profile
Download
Add to libary
find Latest
Related
Files