LOGIN
HOME
CATEGORIES
UPLOAD FILE
PRICING
HOUSE PLAN
ABOUT US
CONTACT US
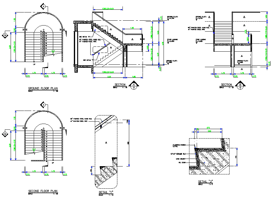
Stair plan and section detail
Home
Categories
Details
Construction Details
Stair plan and section detail
Uploaded by:
Dhara
View Profile
View Profile
Description
Stair plan and section detail, riser and tread detail, section line detail, dimension detail, naming detail, etc.
File Type:
DWG
File Size:
1023 KB
Category::
Details
Sub Category::
Construction Details
type:
Gold
Uploaded by:
Dhara
View Profile
Download
Add to libary
find Latest
Related
Files