LOGIN
HOME
CATEGORIES
UPLOAD FILE
PRICING
HOUSE PLAN
ABOUT US
CONTACT US
Development bathrooms dwg file
Home
Categories
Interior Design
Bathroom Interior
Development bathrooms dwg file
Uploaded by:
Poonam
View Profile
View Profile
Description
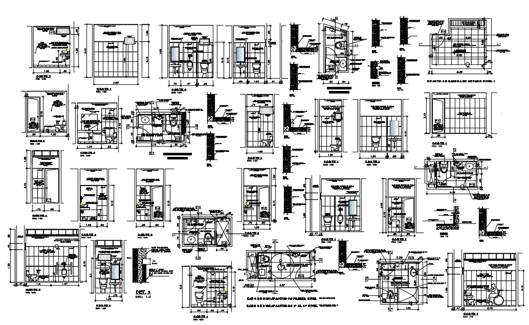
Development bathrooms dwg file. Front and side elevation of bathrooms, drawing labels, details, and other text information extracted from the CAD file.
File Type:
DWG
File Size:
722 KB
Category::
Interior Design
Sub Category::
Bathroom Interior
type:
Gold
Uploaded by:
Poonam
View Profile
Download
Add to libary
find Latest
Related
Files