LOGIN
HOME
CATEGORIES
UPLOAD FILE
PRICING
HOUSE PLAN
ABOUT US
CONTACT US
Shopping center Elevation and section plan
Home
Categories
Architecture
Mall & Shopping Center
Shopping center Elevation and section plan
Uploaded by:
Poonam
View Profile
View Profile
Description
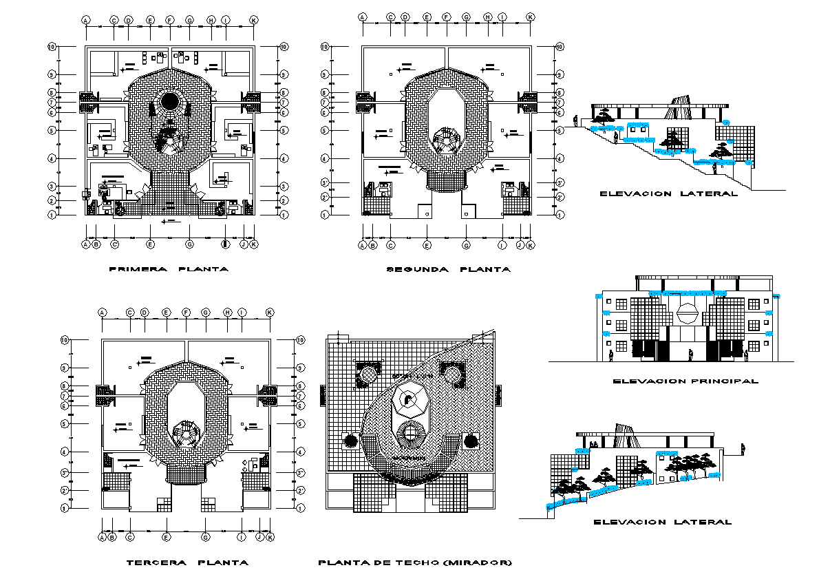
Shopping center dwg file. Various floors and layout plan entry gate, Elevation and section plan, checking counter, interior counter details, wall construction, etc.
File Type:
DWG
File Size:
321 KB
Category::
Architecture
Sub Category::
Mall & Shopping Center
type:
Gold
Uploaded by:
Poonam
View Profile
Download
Add to libary
find Latest
Related
Files