LOGIN
HOME
CATEGORIES
UPLOAD FILE
PRICING
HOUSE PLAN
ABOUT US
CONTACT US
Bathroom fixtures details
Home
Categories
Interior Design
Bathroom Interior
Bathroom fixtures details
Uploaded by:
Dipika
View Profile
View Profile
Description
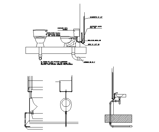
Bathroom fixtures details, Bathroom elevation design dwg file, wc detailing with dimensions , plumbing and piping details in auto cad format
File Type:
DWG
File Size:
34 KB
Category::
Interior Design
Sub Category::
Bathroom Interior
type:
Free
Uploaded by:
Dipika
View Profile
Download
Add to libary
find Latest
Related
Files