LOGIN
HOME
CATEGORIES
UPLOAD FILE
PRICING
HOUSE PLAN
ABOUT US
CONTACT US
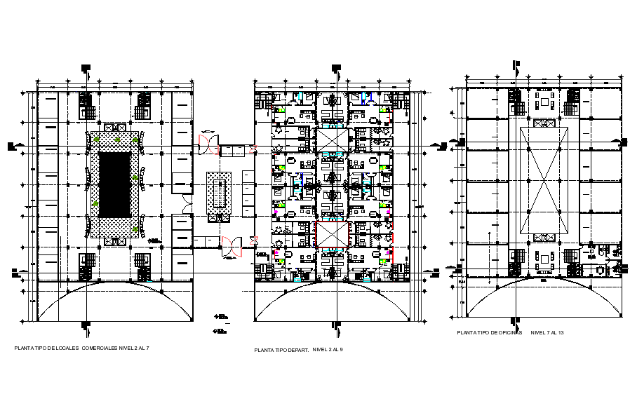
Center hall plan layout file
Home
Categories
Architecture
Corporate Building
Center hall plan layout file
Uploaded by:
Dhara
View Profile
View Profile
Description
Center hall plan layout file, section line detail, centre line detail, dimension detail, naming detail, cut out detail, furniture detail in table, chair, door and window detail, etc.
File Type:
DWG
File Size:
2.6 MB
Category::
Architecture
Sub Category::
Corporate Building
type:
Gold
Uploaded by:
Dhara
View Profile
Download
Add to libary
find Latest
Related
Files