LOGIN
HOME
CATEGORIES
UPLOAD FILE
PRICING
HOUSE PLAN
ABOUT US
CONTACT US
Architect home planing autocad file
Home
Categories
Architecture
House Plan
Architect home planing autocad file
Uploaded by:
Dhara
View Profile
View Profile
Description
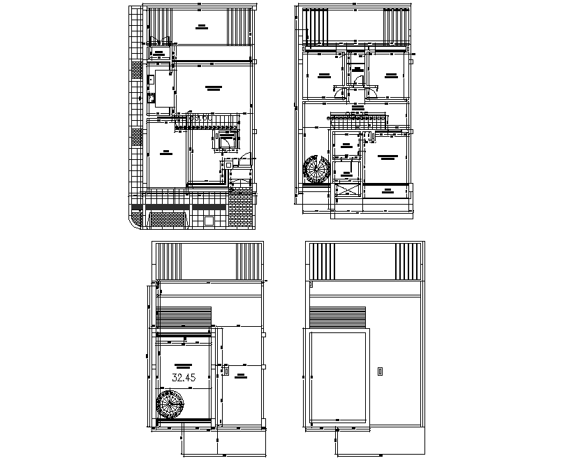
Architect home planing autocad file, diemnsion detail, naming detail, spiral stair detail, cut our detail, landsceping detail in plant and tree detail, etc.
File Type:
DWG
File Size:
3.4 MB
Category::
Architecture
Sub Category::
House Plan
type:
Gold
Uploaded by:
Dhara
View Profile
Download
Add to libary
find Latest
Related
Files