LOGIN
HOME
CATEGORIES
UPLOAD FILE
PRICING
HOUSE PLAN
ABOUT US
CONTACT US
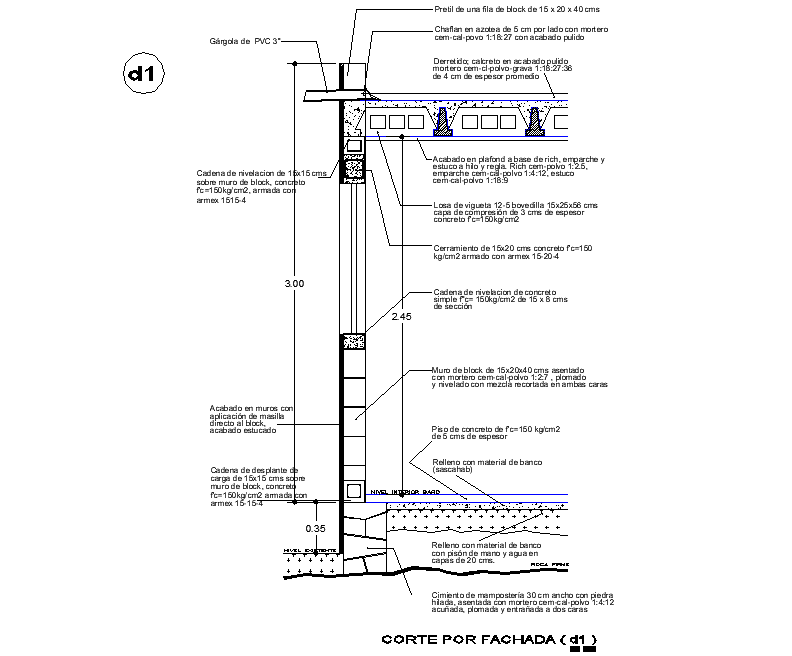
Wall section detail dwg file
Home
Categories
Details
Construction Details
Wall section detail dwg file
Uploaded by:
Dhara
View Profile
View Profile
Description
Wall section detail dwg file, diemnsion detail, naming detail, window section detail, concret mortar detail, etc.
File Type:
DWG
File Size:
1013 KB
Category::
Details
Sub Category::
Construction Details
type:
Gold
Uploaded by:
Dhara
View Profile
Download
Add to libary
find Latest
Related
Files