LOGIN
HOME
CATEGORIES
UPLOAD FILE
PRICING
HOUSE PLAN
ABOUT US
CONTACT US
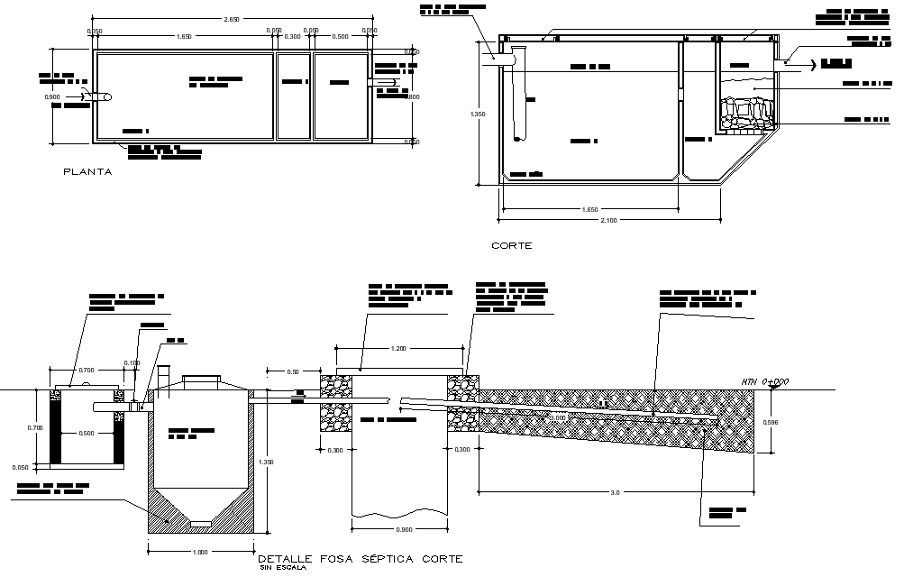
Detail of septic tank autocad file
Home
Categories
Details
Construction Details
Detail of septic tank autocad file
Uploaded by:
Dhara
View Profile
View Profile
Description
Detail of septic tank autocad file, plan and section detail, diemnsion detail, naming detail, stone detail, pipe detail, leveelling detail, etc.
File Type:
DWG
File Size:
1013 KB
Category::
Details
Sub Category::
Construction Details
type:
Gold
Uploaded by:
Dhara
View Profile
Download
Add to libary
find Latest
Related
Files