Detail of electrical home plan detail
Description
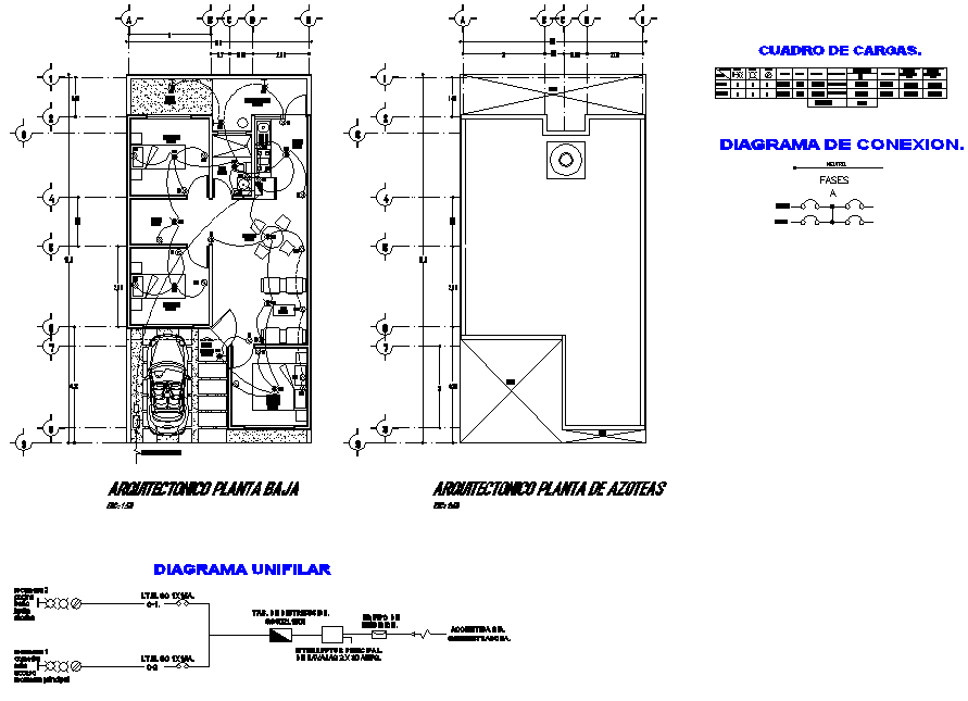
Detail of electrical home plan detail, car parking detail, circuit detail, table specification detail, cut out detail, furniture detail in table, chair, sofa, bed, cub board, door and window detail, etc.
File Type:
DWG
File Size:
896 KB
Category::
Electrical
Sub Category::
Architecture Electrical Plans
type:
Gold
Uploaded by:
