Commercial shopping center architecture layout plan details dwg file
Description
Commercial shopping center architecture layout plan details dwg file.
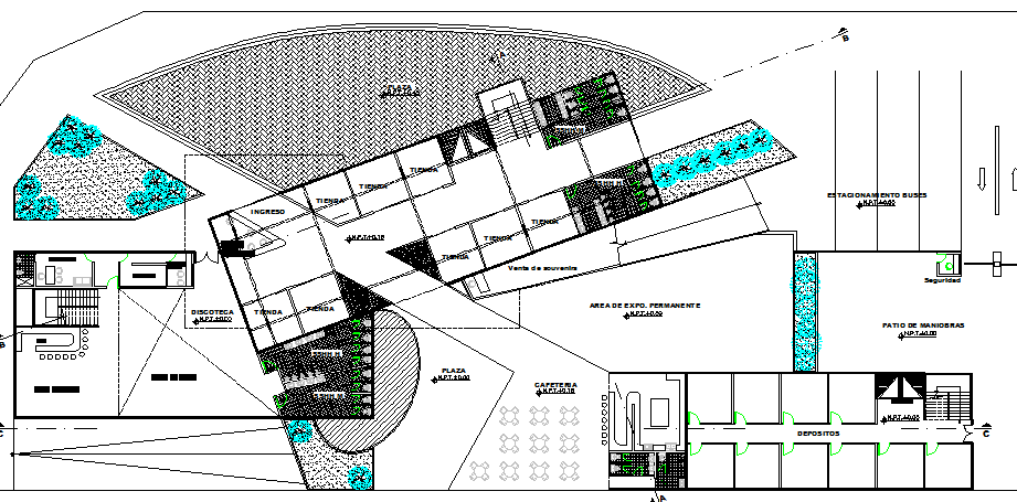
Commercial shopping center architecture layout plan details that includes a detailed view of main entry and exit gate, tree view, mini garden, car parking view, toilets for male female and handicaps, showrooms, shops, food stores, cafeteria, offices, indoor staircases, general all, theater, passage, sitting area and much more of shopping center project.
Uploaded by:

