LOGIN
HOME
CATEGORIES
UPLOAD FILE
PRICING
HOUSE PLAN
ABOUT US
CONTACT US
The office plan detail dwg.
Home
Categories
Architecture
Corporate Building
The office plan detail dwg.
Uploaded by:
Liam
White
View Profile
View Profile
Description
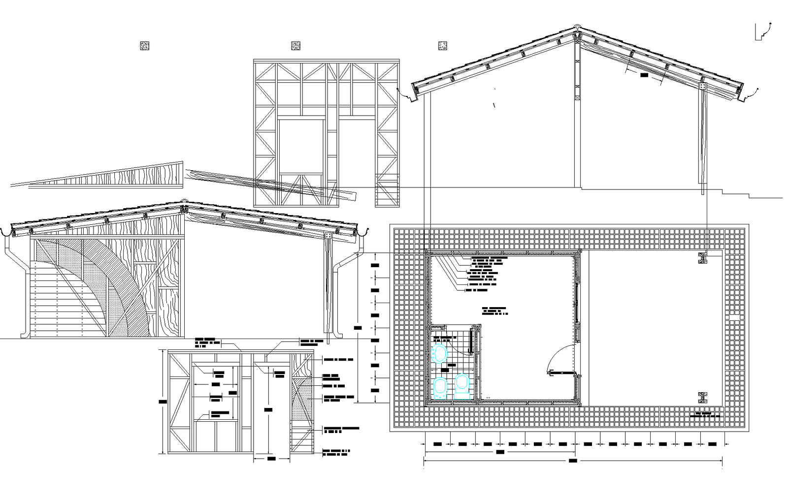
The office made wooden panels and tile roof plan. The elevation with dimension detailing, waterproof jacket detail, Nail joist for planking detailing, etc.,
File Type:
DWG
File Size:
399 KB
Category::
Architecture
Sub Category::
Corporate Building
type:
Gold
Uploaded by:
Liam
White
View Profile
Download
Add to libary
find Latest
Related
Files