Departmental store architecture project dwg file
Description
Departmental store architecture project dwg file.
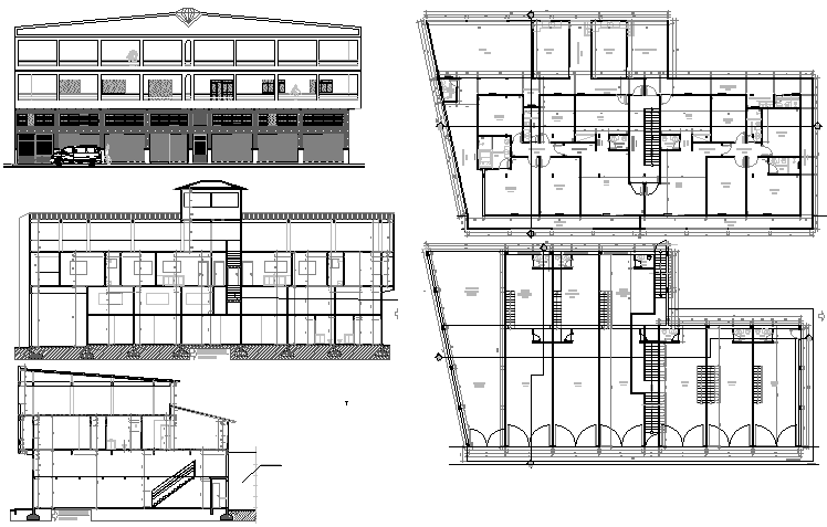
Departmental store architecture project that includes a detailed view of main elevation, main section, cut sectional view, flooring view, doors and windows view, staircase view, balcony view, layout plan details and much more of departmental store project.
Uploaded by:

