Moqua market architecture layout plan details dwg file
Description
Moqua market architecture layout plan details dwg file.
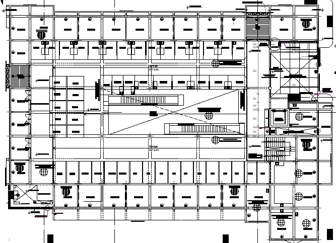
Moqua market architecture layout plan details that includes a detailed view of main entry and exit gate, car parking view, basement floor, indoor staircase, shops and showrooms, corporate offices, salon, academic shops, departmental stores, food stores and much more of market project.
Uploaded by:

