Small Restaurant Detail File
Description
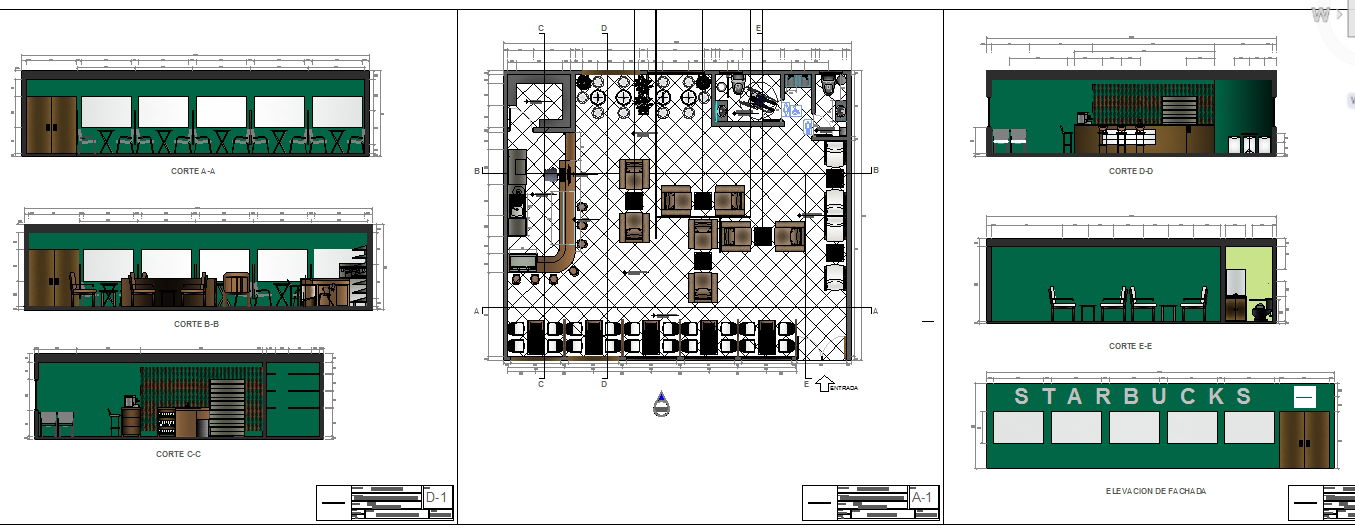
Restaurants may be classified or distinguished in many different ways. The primary factors are usually the food itself the cuisine and the style of offering . Beyond this, restaurants may differentiate themselves on factors including speed, formality, location, cost, service, or novelty themes.

Uploaded by:
Harriet
Burrows

