LOGIN
HOME
CATEGORIES
UPLOAD FILE
PRICING
HOUSE PLAN
ABOUT US
CONTACT US
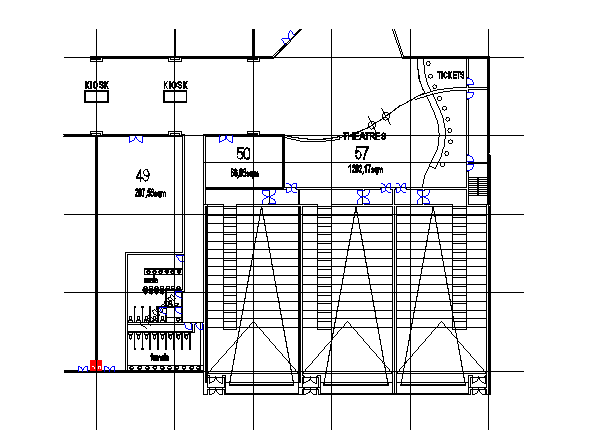
Top view plan of staircase
Home
Categories
Details
Interior Details
Top view plan of staircase
Uploaded by:
Dipika
View Profile
View Profile
Description
Top view plan of staircase, here there is top view detail of staircase design in auto cad format
File Type:
DWG
File Size:
70 KB
Category::
Details
Sub Category::
Interior Details
type:
Free
Uploaded by:
Dipika
View Profile
Download
Add to libary
find Latest
Related
Files