LOGIN
HOME
CATEGORIES
UPLOAD FILE
PRICING
HOUSE PLAN
ABOUT US
CONTACT US
Vehicular bridge plan layout file
Home
Categories
Architecture
Road & Bridge
Vehicular bridge plan layout file
Uploaded by:
Dhara
View Profile
View Profile
Description
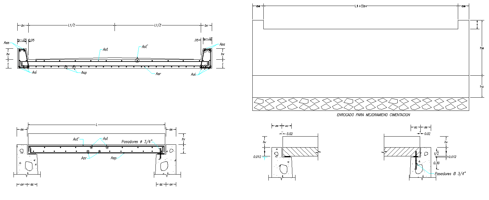
Vehicular bridge plan layout file, bolt nut detail, reinforcement detail, dimension detail, naming detail, stone detail, etc.
File Type:
DWG
File Size:
744 KB
Category::
Architecture
Sub Category::
Road & Bridge
type:
Gold
Uploaded by:
Dhara
View Profile
Download
Add to libary
find Latest
Related
Files