Engineer association building floor plan details dwg file
Description
Engineer association building floor plan details dwg file.
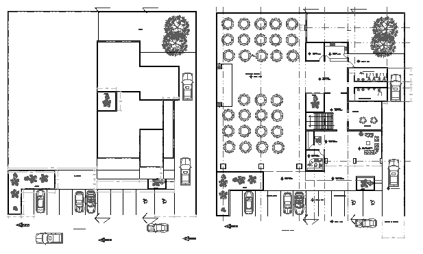
Engineer association building floor plan details that includes a detailed view of ground floor, first floor, tree view, mini garden, green area, car parking view, main entry and exit gate, waiting area, reception area, conference hall, cafeteria, dining area, sanitary facilities and much more of building project.
Uploaded by:

