Bank agency basement and general layout plan details dwg file
Description
Bank agency basement and general layout plan details dwg file.
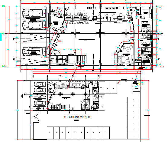
Bank agency basement and general layout plan details that includes a detailed view of car parking view, specified car space, indoor staircase view, entry and exit gate, waiting area, seating area, reception area, inquiry desk, corporate offices, head offices, employee desk, dining area, conference hall, meeting room, sanitary facilities and much more of bank agency details.
Uploaded by:

